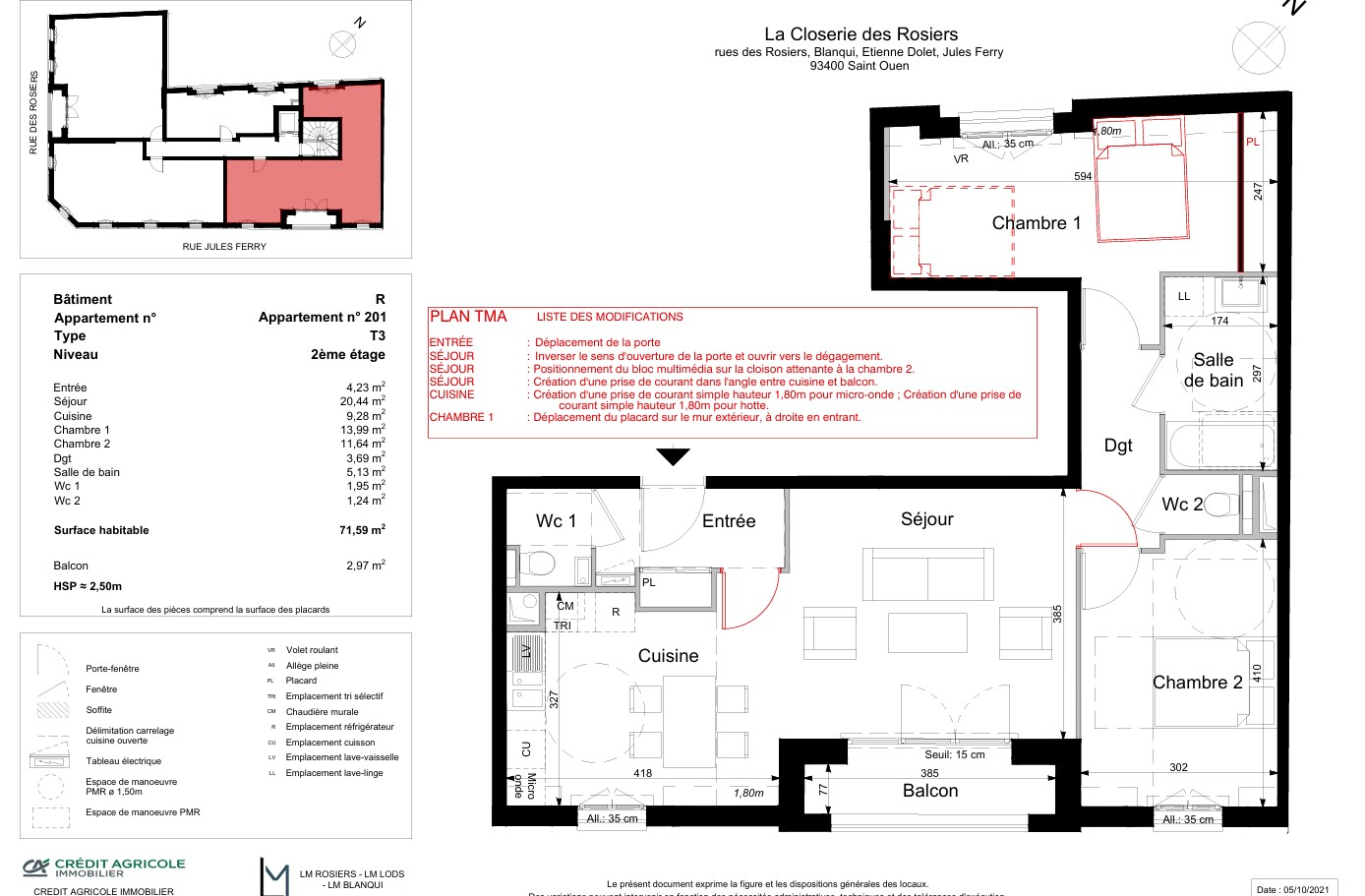
EXCLUSIVITE LBI ! Dans un immeuble de 2025, idéalement situé entre le métro Garibaldi et le marché des antiquaires, rue Jules Ferry. Cet appartement au deuxième et dernier étage vous séduira par ses finitions intérieures, son calme et sa luminosité (exposition Sud-Est).
Il se décompose de la façon suivante : une entrée avec placard intégré, des WC, un séjour avec cuisine ouverte de 30 m² et un balcon de 3 m², un dégagement, deux chambres, une salle de bain et des seconds WC.
Une cave et une place de parking complètent le bien.
Copropriété de 74 lots (Pas de procédure en cours).
Charges annuelles : 1800 euros.
Informations Copropriété

